Những mẫu thiết kế biệt thự có tầng hầm hiện nay đang rất được ưa chuộng. Nhiều gia đình đã lựa chọn xây dựng tầng hầm để phục vụ nhu cầu công năng khác nhau như làm nơi để xe, làm hầm chứa rượu, thậm chí là cả một không gian giải trí dưới lòng đất.
Công ty Cổ phần Morehome đã thực hiện thi công biệt thự có tầng hầm cho gia đình anh Long tại thành phố Móng Cái, tỉnh Quảng Ninh. Thiết kế này sau đó đã được rất nhiều khách hàng đặt hàng và yêu cầu làm tương tự. Biệt thự của gia đình anh Long bao gồm 3 tầng, có kiến trúc hình chữ L, thiết kế theo phong cách biệt thự mái Thái hiện đại và năng động nhưng vẫn toát lên nét sang trọng, cao cấp. Xung quanh nhà có trồng nhiều cây xanh, phá tan nét khô cứng của những khối hình cũng như tạo ra bóng mát và không khí trong lành. Hệ thống cửa kính lớn giúp đón ánh sáng tự nhiên, mang đến cho biệt thự sự thông thoáng và rất đỗi gần gũi với thiên nhiên.

Biệt thự nhà anh Long nhìn từ phía ngoài.
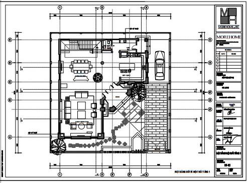
Bản vẽ thiết kế biệt thự có tầng hầm thể hiện rằng tại tầng 1 có gara để xe ô tô có mái che, lối sân nhỏ đi lại và một sảnh chính dẫn vào nhà. Nối liền với cửa lớn là phòng khách có diện tích rộng, có 2 mặt nhìn ra không gian bên ngoài, đảm bảo ánh sáng luôn ngập tràn cho căn phòng được tươi sáng. Phòng bếp và phòng ăn tương đối rộng rãi, mang thiết kế nội thất hiện đại nhưng ấm cúng và tạo nên sự gắn kết các thành viên trong gia đình. Tại tầng 1 còn có 1 nhà vệ sinh nhỏ cùng 1 phòng kho chứa những vật dụng ít khi dùng đến.

Bản vẽ thiết kế tầng 1.
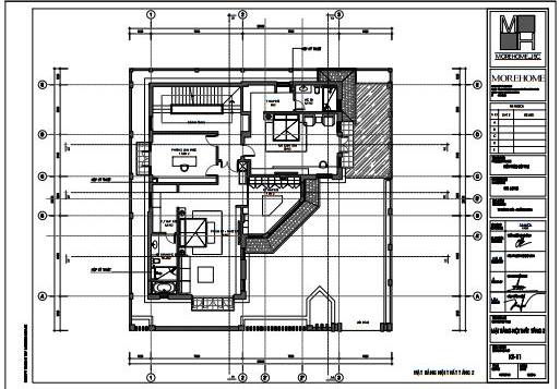
Tầng 2 được dẫn lên bởi một sảnh tầng, có lối đi lại tương đối thoải mái. Liền kề với sảnh tầng là phòng làm việc yên tĩnh và kín đáo. Trong không gian tầng 2 có 2 phòng ngủ, kết hợp với phòng tắm + vệ sinh khép kín. Với thiết kế biệt thự phòng ngủ như vậy sẽ đảm bảo được sinh hoạt cá nhân có sự riêng tư, tạo sự thoải mái cho tất cả mọi người.

Bản vẽ thiết kế tầng 2.
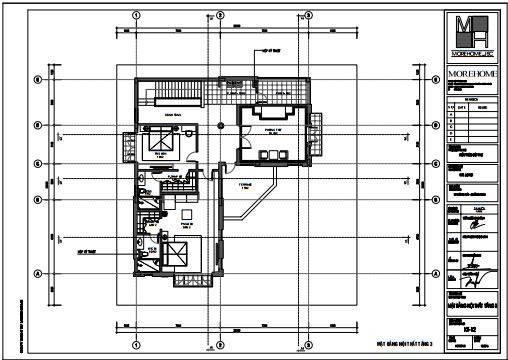
Công năng tầng 3 bao gồm 1 sảnh tầng, 2 phòng ngủ và 1 gian thờ rất rộng rãi. Bên ngoài gian thờ có ban công dùng để làm nơi giặt giũ, phơi phóng đồ đạc. Đặc biệt không gian ban công phía trước của biệt thự còn được dành để làm nơi nghỉ ngơi, thư giãn, uống trà, có bố trí một chiếc ô che nắng, mưa.

Bản vẽ thiết kế tầng 3.
Thiết kế nội thất mà gia đình anh Long lựa chọn mang phong cách hiện đại, trẻ trung, có sự tương đồng với thiết kế biệt thự mái thái mà gia đình anh đã lựa chọn trước đó. Những vật dụng trong nhà đều tối giản, không có những chi tiết cầu kỳ, mang hai sắc màu trắng – đen đối lập rất hiện đại, phóng khoáng và mạnh mẽ.

Gian bếp đơn giản, rộng rãi và hiện đại.
Anh Long đã sử dụng tầng hầm nhà mình làm nơi để chứa rượu. Được biết anh rất thích sưu tầm rượu quý và muốn được bảo quản chúng một cách tốt nhất, trong một điều kiện môi trường như tầng hầm. Mẫu nhà biệt thự có tầng hầm là điều anh mong muốn từ lâu, tuy nhiên phải đến khi xây dựng biệt thự mới thì không gian này mới được thực hiện. Ngoài ra, tầng hầm cũng là nơi anh dành để một số vật dụng quan trọng khác.

Tầng hầm nhà anh Long chủ yếu là chứa rượu.
Để thiết kế tầng hầm cho một căn biệt thự không phải là một công trình đơn giản. Nó đòi hỏi nhiều hơn sự tính toán, cân nhắc và cần được thiết kế một cách chính xác tuyệt đối. Tùy thuộc vào nhu cầu công năng mà bạn có thể biến tấu linh hoạt cho tầng hầm của gia đình mình. Nếu bạn vẫn còn thắc mắc về thi công biệt thự, thi công tầng hầm thì hãy liên hệ với Morehome thông qua số điện thoại 097 543 8686 hoặc gửi thư về hòm mail [email protected] để được chúng tôi tư vấn và giải đáp cũng như đưa ra những gợi ý hữu ích cho căn nhà của bạn.